Apartment for sale Bydgoszcz, Czyżkówko

2 pokoje
26.50 m²
9 962,26 zł/m2
2floor piętro
FRMN-MS-4622

264 000 zł

Apartment for sale

Property details

Offer no. FRMN-MS-4622
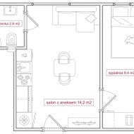
Size 26,50 m²
Usable area [m2] 26,50 m²
No. of rooms 2
No. of bedrooms 1
Building type tenement house
Building technology concrete, brick
Standard
Costs included in House community fee Monitoring, administration, co, common parts
Costs depending on use Water, gas, Current
Floor 2floor
Storey 2
Condition very good
House community fee 240 PLN
Windows PCV
Fittings vir_listalng_elektryczna_gazowa
Built in 1935
Gas yes
Water vir_listalng_ciepla__piecyk
Surrounding river
Heating CO
Furnishings partially furnished
Distance to shop 150 m
Distance to school 350 m
Distance to kindergarten 400 m
Location peak
cellar yes
Pomieszczenia
Rooms floors panels
Kitchen type Kitchenette
Kitchen type kitchen annex with dining room
Kitchen floor panels
Kitchen appliance kitchen furniture to size, induction hob, hood, electric oven, dish-washer
Bathroom type along with the toilet
Bathroom glaze new type
Bathroom floor PCV tiles, mosaic
Bathroom equipment washbasin, toilet, shower, mirror
Toilet glaze new type
Toilet floor granite
No. of anterooms 1
Hall floor panels
Dagmara Janiszewska

Dagmara Janiszewska

asystent biurowy / agent nieruchomości

Write a message 193 Offers

Description

Legal notice

Treść niniejszego ogłoszenia ma charakter wyłącznie informacyjny i nie stanowi oferty handlowej w rozumieniu przepisów Kodeksu Cywilnego.

Location

Similar offers

Apartment for sale

Bydgoszcz, Czyżkówko

1 pokoj 27 m2 9 773,58 zł/m2

asystent biurowy / agent nieruchomości

Please enter a valid name and surname
Please enter a valid phone number
Please enter a valid email address
Please tick this box
Solve the equation:
15 1
Incorrect result