Mieszkanie na sprzedaż Bydgoszcz, Bocianowo

2 pokoje
25.87 m²
11 557,79 zł/m2
3 piętro
FRMN-MS-3999

299 000 zł

Mieszkanie na sprzedaż
Bez prowizji

Szczegóły oferty

Symbol oferty FRMN-MS-3999
Powierzchnia 25,87 m²
Powierzchnia użytkowa [m2] 25,87 m²
Liczba pokoi 2
Liczba sypialni 1
Rodzaj budynku budynek wielorodzinny
Technologia budowlana cegła + styropian
Standard
Opłaty w czynszu administracja, CO, Części wspólne, monitoring, ogrzewanie, sprzątanie, Winda, woda/ryczałt na wodę, wywóz śmieci
Opłaty wg liczników prąd
Piętro 3
Liczba pięter w budynku 4
Stan lokalu deweloperski
Mies. czynsz admin. 260 PLN
Okna PCV 3 szyby, ciepły montaż
Instalacje nowe
Balkon brak
Rok budowy 2025
Widok na osiedle
Woda ciepła - sieć
Dojazd ASFALTOWA
Otoczenie zabudowa mieszana
Ogrzewanie C.O. miejskie
Odległość do komunikacji publicznej [m] 150 m
Odl. do sklepu [m] 250 m
Odl. do szkoły [m] 400 m
Odl. do przedszkola [m] 400 m
Winda tak
Liczba wind 1
Usytuowanie środkowe
Pomieszczenia
Podłogi pokoi wylewka
Typ kuchni aneks kuchenny połączony z jadalnią i salonem
Rodzaj kuchni aneks kuchenny - połączony z salonem
Podłoga kuchni wylewka
Typ łazienki razem z wc
Liczba łazienek 1
Podłoga łazienki wylewka
Dagmara Janiszewska

Dagmara Janiszewska

asystent biurowy / agent nieruchomości

Napisz wiadomość 202 Ofert

Opis nieruchomości

Na sprzedaż! Komfortowe 2-pokojowe mieszkanie.
Nowa Kościuszki
***0% prowizji 0% podatku PCC ***

Inwestycja Nowa Kościuszki oferuje funkcjonalne mieszkania o metrażach od 25,5 m² do 53 m², dzięki czemu każdy znajdzie tu przestrzeń dopasowaną do swoich potrzeb – zarówno singiel, para, jak i osoby poszukujące lokalu pod inwestycję (z możliwością aranżacji tzw. dwupaków).
Całość została zaprojektowana z myślą o komforcie i estetyce. Starannie dobrane materiały oraz wysoki standard wykończenia podkreślają prestiż inwestycji. Nowoczesne rozwiązania, w tym elegancko wykończone sufity, nadają wnętrzom spójny i stylowy charakter.
Duże, przestronne klatki schodowe zapewniają wygodę codziennego użytkowania, a ich przemyślany projekt i wysoka jakość wykonania harmonijnie wpisują się w nowoczesny design całego budynku.

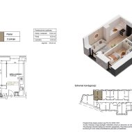
Mieszkanie o powierzchni 25,87 m2 składa się z:
  • salonu z aneksem 14,37 m2
  • sypialni 8 m2
  • łazienki z wc 3,50 m2
Do mieszkania przynależy balkon
 
Do mieszkania jest możliwość dokupienia miejsca postojowego w kwocie 20 tyś zł oraz komórki lokatorskiej w kwocie 10 tyś zł.

Dodatkowe udogodnienia:
✔ Balkony przy każdym mieszkaniu od 1 pietra
✔ Komórki lokatorskie dla mieszkańców
✔ Naziemne miejsca postojowe zapewniające wygodę
✔ Rowerownia
✔ Wózkownia

Standard wykończenia i własność:
Mieszkania będą oddawane w stanie do wykończenia, co pozwoli na dowolną aranżację wnętrz. Właściciele nieruchomości otrzymają odrębną własność z własnością gruntu.

Doskonała lokalizacja i komunikacja:

Budowane Osiedle znajduje się w świetnie skomunikowanej części miasta, co ułatwi codzienny dojazdy do pracy, szkoły czy centrum. W pobliżu znajdują się przystanki komunikacji miejskiej:
Gdańska / Artyleryjska
– 190 m
Kamienna / Gdańska – 206 m
  1. Dodatkowym atutem całej Inwestycji jest w bliskość znajdujących się sklepów spożywczych czy supermarketów bo zaledwie ( 150 m.)
  2. Bliskość do punktów opieki medycznej: Centrum Medyczne Gizińscy ( 390 m.), Przychodnia Gdańska (404 m.)
  3. W niedalekiej odległości znajduje się kilka placów zabaw dla najmłodszych ( 310 m.)
  4. Dodatkowa zaleta położenia Inwestycji jest bliskość do punktów rekreacji takich jak Orlik ( 200 m.), boisko (250 m.) czy samego Parku w Myślęcinku do którego dojedziemy bezpośrednio tramwajem z ul. Gdańskiej.
  
Nie czekaj na lepszy czas! Zadzwoń już dziś i umów się na prezentację!
Zapraszam

Dagmara Janiszewska
+48 535 398 014

Rozważasz kredytowanie nieruchomości?
Nasz doradca kredytowy porówna i dobierze finansowanie najlepiej dopasowane do Twoich potrzeb.

Nota prawna

Treść niniejszego ogłoszenia ma charakter wyłącznie informacyjny i nie stanowi oferty handlowej w rozumieniu przepisów Kodeksu Cywilnego.

Lokalizacja nieruchomości

Podobne oferty

Mieszkanie na sprzedaż

Bydgoszcz, Bocianowo

1 pokoj 29 m2 7 142,86 zł/m2
Bez prowizji

Mieszkanie na sprzedaż

Bydgoszcz, Bocianowo

2 pokoje 26 m2 11 407,86 zł/m2
Bez prowizji
Bez prowizji

Mieszkanie na sprzedaż

Bydgoszcz, Bocianowo

2 pokoje 37 m2 9 200,00 zł/m2
Bez prowizji
Bez prowizji

Mieszkanie na sprzedaż

Bydgoszcz, Bocianowo

1 pokoj 31 m2 10 900,00 zł/m2
Bez prowizji

asystent biurowy / agent nieruchomości

Proszę wprowadzić poprawne imię i nazwisko
Proszę wprowadzić poprawny numer telefonu
Proszę wprowadzić poprawny adres e-mail
Proszę zaznaczyć wymagane zgody
Rozwiąż równanie:
15 9
Niepoprawny wynik