Mieszkanie na sprzedaż Bydgoszcz, Bartodzieje

2 pokoje
37.86 m²
10 651,45 zł/m2
1 piętro
FRMN-MS-4640

403 264 zł

Mieszkanie na sprzedaż
Nowa oferta

Szczegóły oferty

Inwestycja Gajowa
Symbol oferty FRMN-MS-4640
Powierzchnia 37,86 m²
Powierzchnia użytkowa [m2] 37,86 m²
Liczba pokoi 2
Liczba sypialni 2
Rodzaj budynku blok
Technologia budowlana suporeks
Standard
Opłaty w czynszu ogrzewanie, woda, woda ciepła, wywóz nieczystości, wywóz śmieci
Opłaty wg liczników prąd
Piętro 1
Liczba pięter w budynku 10
Stan lokalu deweloperski
Mies. czynsz admin. 490 PLN
Czynsz zimowy 490 PLN
Okna PCV
Instalacje nowe
Rok budowy 2025
Plac zabaw tak
Widok na osiedle
Gaz brak
Woda ciepła - miejska
Dojazd asfalt
Ogrzewanie C.O. miejskie
Winda tak
Usytuowanie dwustronne
Drzwi antywłamaniowe tak
Pomieszczenia
Podłogi pokoi wylewka
Rodzaj kuchni aneks kuchenny - połączony z salonem
Podłoga kuchni wylewka
Typ łazienki razem z wc
Liczba łazienek 1
Glazura łazienki bez glazury
Podłoga łazienki wylewka
Liczba przedpokoi 1
Podłoga przedpokoi wylewka
Małgorzata Michalak

Małgorzata Michalak

doradca ds. nieruchomości

Napisz wiadomość 87 Ofert

Opis nieruchomości

Limitowana oferta i cena!

Nowa inwestycja w sercu osiedla Bartodzieje, nad Balatonem, ul Gajowa, gdzie miasto i zieleń spotykają się na wyciągnięcie ręki.

Brak PCC oraz opłat do biura nieruchomości.


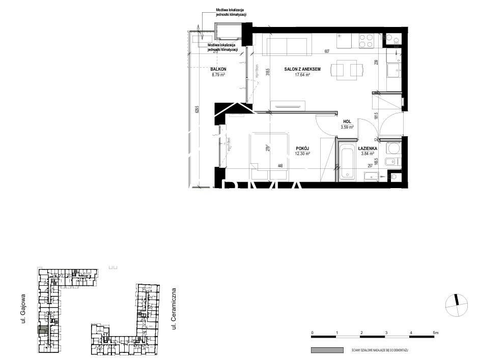
Mieszkanie o pow. 37,86m2 składa się z :

- salonu z aneksem kuchennym 17,54m2
- pokoju 12,30m2
- łazienki z wc 3,54m2
- holu 3,59m2
- tarasowy balkon 8,79m2.

Miejsca parkingowe w garażu 65.000 00 zł, miejsca naziemne 35.000 00zł.
Komórki lokatorskie od 6.000 00zł/m2.


DESIGN

Dbałość o detal towarzyszy każdemu aspektowi projektu GAJOWA.
Utrzymany w nowoczesnym, minimalistycznym stylu design w połączeniu z nowoczesnymi materiałami wysokiej jakości tworzą kompozycję o doskonałej funkcjonalności i ponadczasowej stylistyce.

BLISKOŚĆ NATURY

GAJOWA znajduje się tuż obok parku i akwenu Balaton - jednego z najbardziej popularnych miejsc wypoczynku i rekreacji w Bydgoszczy.
Ponadto mieszkańcy mogą cieszyć się bliskością ponad 9ha terenów zielonych.

KOMFORT części wspólnych.

Subtelne dodatki - takie jak architektoniczne detale z wysokiej jakości materiałów, dystrybutory zapachów oraz ambient muzyczny w częściach wspólnych podkreślają styl i prestiż GAJOWEJ.

Udogodnienia:
- pełna infrastruktura w bliskiej odległości
- podgrzewane wjazdy do hali garażowej
- ogródki, tarasy oraz balkony
- plac rekreacyjny
- panoramiczne okna
- funkcjonalne przestronne układy mieszkań.

Zapraszamy wszystkich zainteresowanych szukających pewnych inwestycji.

Małgorzata Michalak
tel. (+48) 575 398 050


Zapewniamy pełną obsługę kredytową.
Nasz doradca kredytowy porówna i dobierze finansowanie najlepiej dopasowane do Twoich potrzeb.

 

Nota prawna

Treść niniejszego ogłoszenia ma charakter wyłącznie informacyjny i nie stanowi oferty handlowej w rozumieniu przepisów Kodeksu Cywilnego.

Podobne oferty

Mieszkanie na sprzedaż

Bydgoszcz, Bartodzieje

2 pokoje 36 m2 13 900,00 zł/m2

Mieszkanie na sprzedaż

Bydgoszcz, Bartodzieje

2 pokoje 47 m2 11 000,00 zł/m2

Mieszkanie na sprzedaż

Bydgoszcz, Bartodzieje

2 pokoje 41 m2 11 800,00 zł/m2
Nowa oferta

Mieszkanie na sprzedaż

Bydgoszcz, Bartodzieje

2 pokoje 35 m2 10 649,43 zł/m2
Nowa oferta

doradca ds. nieruchomości

Proszę wprowadzić poprawne imię i nazwisko
Proszę wprowadzić poprawny numer telefonu
Proszę wprowadzić poprawny adres e-mail
Proszę zaznaczyć wymagane zgody
Rozwiąż równanie:
25 2
Niepoprawny wynik