Mieszkanie na sprzedaż Bydgoszcz, Czyżkówko

4 pokoje
78.85 m²
10 000,00 zł/m2
3 piętro
FRMN-MS-3833

788 500 zł

Mieszkanie na sprzedaż

Szczegóły oferty

Inwestycja Nowe Flisy
Symbol oferty FRMN-MS-3833
Powierzchnia 78,85 m²
Powierzchnia użytkowa [m2] 78,85 m²
Liczba pokoi 4
Liczba sypialni 3
Rodzaj budynku blok
Technologia budowlana pustak
Standard
Opłaty w czynszu ogrzewanie, woda, woda ciepła, wywóz nieczystości, wywóz śmieci
Opłaty wg liczników prąd
Piętro 3
Liczba pięter w budynku 3
Stan lokalu deweloperski
Mies. czynsz admin. 350 PLN
Czynsz zimowy 350 PLN
Okna PCV 3 szyby, ciepły montaż
Instalacje nowe
Balkon jest
Rok budowy 2025
Plac zabaw tak
Widok na osiedle
Woda ciepła - miejska
Dojazd asfalt
Otoczenie tereny rekreacyjne
Ogrzewanie C.O. Z SIECI MIEJSKIEJ
Winda tak
Liczba wind 1
Usytuowanie narożne
Drzwi antywłamaniowe tak
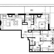
Pomieszczenia
Powierzchnia pokoi 21,22 m2 ; 13,25 m2 ; 9,88 m2 ; 9,88 m m2
Podłogi pokoi wylewka
Typ kuchni otwarta
Rodzaj kuchni aneks kuchenny - połączony z salonem
Typ łazienki razem z wc
Liczba przedpokoi 1
Agnieszka Grzeszek

Agnieszka Grzeszek

doradca ds. nieruchomości

Napisz wiadomość 90 Ofert

Opis nieruchomości

Na sprzedaż nowe 4 pokojowe mieszkanie o pow. 78,85 m2 - na osiedlu Czyżkówko w Bydgoszczy.

♥ Piękna lokalizacja w otoczeniu zieleni i Kanału Bydgoskiego ♥ 

Zakup nieruchomości bez podatku PCC oraz wynagrodzenia dla biura

Mieszkanie składa się z:
- salonu z aneksem kuchennym
- sypialni
- sypialni
- sypialni

- łazienki z wc
- łazienki z wc
- korytarza
- pralni

oraz dodatkowo balkon o pow. 42,52 m2.

Opis osiedla:
Cicha, zielona lokalizacja, w sąsiedztwie Kanału Bydgoskiego, z dostępem do transportu miejskiego i z szybkim 7-minutowym dojazdem do centrum. Lokalizacja ta spodoba się szczególnie rodzinom, ale też wszystkim, którzy szukają zielonej alternatywy mieszkań dla lokalizacji w centrum Bydgoszczy. Nowe Flisy dedykujemy także tym, którzy potrzebują harmonii pomiędzy tętniącym życiem miastem, a domową oazą.
Nowe Flisy to koncepcja nowoczesnego osiedla w Bydgoszczy, które tworzyć będzie 8 kameralnych budynków, starannie zaprojektowana zieleń wewnątrz osiedla, a także przestrzenie wspólne dla mieszkańców – place zabaw, ścieżki spacerowe i miejsca wypoczynku.
Lokalizacja nowego osiedla na Czyżkówku zasługuje na uwagę, ponieważ miejsce to sąsiaduje z naturą – linią brzegową Kanału Bydgoskiego oraz pasmem zielonych drzew. Miejsce to stanie się mieszkaniową ostoją dla tych, którzy chcą mieszkać w kameralnych, niskich budynkach, na klimatycznym osiedlu, z szybkim dostępem do atrakcji, jakie oferuje centrum miasta.

Całość otoczona bogactwem zieleni, przypominającej ogród, w którym można usiąść i zrelaksować się sąsiadując z naturą.

GŁÓWNE ATUTY:
- otoczenie zieleni Kanału Bydgoskiego
- 1 minuta do komunikacji miejskiej
- 1 minuta do sklepu Biedronka oraz cukierni Staropolska i 5 minut do Galerii Miedzyń
- podziemna hala garażowa
- ciche windy od poziomu -1 do 3
- plac zabaw na terenie osiedla
- teren zamknięty
Ceny dodatkowe:
- komórka lokatorska w podziemnej hali garażowej – 3500zł / m2
- miejsca garażowe w podziemnej hali garażowej – od 35.000 do 45.000 zł (w zależności od położenia miejsca)
- miejsca parkingowe (zewnętrzne)  – 18.000 zł
- termin realizacji – październik 2026

Zapraszam do zapoznania się z naszą ofertą i dostępnymi mieszkaniami

Agnieszka Grzeszek
533-398-009

Nasz doradca kredytowy porówna i dobierze finansowanie najlepiej dopasowane do Twoich potrzeb.

Zapraszam również na rozmowę przy kawie do naszego biura w Bydgoszczy, ul. Gdańska 27.

Nota prawna

Treść niniejszego ogłoszenia ma charakter wyłącznie informacyjny i nie stanowi oferty handlowej w rozumieniu przepisów Kodeksu Cywilnego.

Lokalizacja nieruchomości

Podobne oferty

Mieszkanie na sprzedaż

Bydgoszcz, Czyżkówko

5 pokoi 95 m2 10 100,00 zł/m2

Mieszkanie na sprzedaż

Bydgoszcz, Czyżkówko

3 pokoje 60 m2 9 500,00 zł/m2

Mieszkanie na sprzedaż

Bydgoszcz, Czyżkówko

4 pokoje 70 m2 9 550,01 zł/m2

Mieszkanie na sprzedaż

Bydgoszcz, Czyżkówko

4 pokoje 79 m2 10 073,33 zł/m2

doradca ds. nieruchomości

Proszę wprowadzić poprawne imię i nazwisko
Proszę wprowadzić poprawny numer telefonu
Proszę wprowadzić poprawny adres e-mail
Proszę zaznaczyć wymagane zgody
Rozwiąż równanie:
21 1
Niepoprawny wynik