Mieszkanie na sprzedaż Bydgoszcz, Bocianowo

2 pokoje
41.65 m²
9 800,00 zł/m2
2 piętro
FRMN-MS-4499

408 170 zł

Mieszkanie na sprzedaż
Bez prowizji

Szczegóły oferty

Inwestycja Industria
Symbol oferty FRMN-MS-4499
Powierzchnia 41,65 m²
Powierzchnia użytkowa [m2] 41,65 m²
Liczba pokoi 2
Liczba sypialni 1
Rodzaj budynku apartamentowiec
Technologia budowlana silikat
Standard
Opłaty w czynszu administracja, CO, Części wspólne, monitoring, ogrzewanie, sprzątanie, Winda, woda/ryczałt na wodę, wywóz śmieci
Opłaty wg liczników prąd
Piętro 2
Liczba pięter w budynku 5
Stan lokalu deweloperski
Mies. czynsz admin. 410 PLN
Okna PCV 3 szyby, ciepły montaż
Instalacje nowe
Balkon jest
Rok budowy 2025
Widok na osiedle
Woda ciepła - miejska
Dojazd asfaltowa/kostka
Otoczenie osiedle
Ogrzewanie C.O. miejskie
Odl. do sklepu [m] 100 m
Winda tak
Liczba wind 1
Usytuowanie narożne
Drzwi antywłamaniowe tak
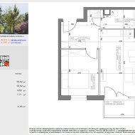
Pomieszczenia
Dagmara Janiszewska

Dagmara Janiszewska

asystent biurowy / agent nieruchomości

Napisz wiadomość 175 Ofert

Opis nieruchomości

 ***Inwestycja Industria***
 
Prezentowana inwestycja to osiedle Industria w Bydgoszczy, która jest doskonałym przykładem adaptacji europejskich trendów rewitalizacyjnych, które skupiają się na przemysłowych obszarach i przywracaniu im funkcji mieszkalnych oraz usługowych, odzwierciedlając tym samym rozwój miasta.
 
Planowany etap zakończenia budowy i oddanie budynku do użytku to IV kwartał roku 2026.
 
Mieszkanie o powierzchni 41,65 m2 składa się z:
- salonu z aneksem kuchennym
- łazienki z WC
- przedpokoju

Dodatkowo do mieszkania przynależny balkon o powierzchni 4,05 m2

Standard mieszkania i budynku :
Tu w każdym mieszkaniu w stanie deweloperskim znajdziemy:
- łącza światłowodowe
- wideodomofon
- panoramiczne trzyszybowe okna

 
Komórki lokatorskie miejsca zewnętrzne oraz miejsca w hali garażowej są ograniczone.
 
Budynki charakteryzują się postindustrialnym designem, gdzie części wspólne zasilane są instalacją fotowoltaiczną.
 
Opis osiedla :
Industria to koncepcja połączenia rewitalizowanych śródmiejskich terenów w osiedle, które tworzyć będzie 5 budynków, gdzie znajdziemy:
- starannie zaprojektowaną zieleń
- podziemną halę garażową
- cichobieżne windy
- zagospodarowany zielenią dziedziniec
- plac zabaw
- przestronne i stylowe części wspólne
- rowerownię

Lokalizacja:
Spokojna okolica o pełnej infrastrukturze przyciąga uwagę szerokiego grona odbiorców. Mieszkania w tej lokalizacji stanowią atrakcyjną propozycję dla osób w różnym wieku i sytuacji życiowej. Zarówno młodzi, którzy szukają swojego pierwszego gniazdka, jak i rodziny z dziećmi czy seniorzy znajdą tutaj swoje miejsce. Ta lokalizacja oferuje spokój, jednocześnie zachowując dogodny dostęp do wszystkich udogodnień typowych dla miejskiego życia.

 
-- Brak PCC oraz opłat do biura nieruchomości --

Zapewniamy pełną obsługę kredytową.
Polecam ofertę i zapraszam serdecznie na prezentacje.

Dagmara Janiszewska

+(48) 353 398 014

Rozważasz kredytowanie nieruchomości?
Nasz doradca kredytowy porówna i dobierze finansowanie najlepiej dopasowane do Twoich potrzeb.

Zapraszam również do naszego biura przy ulicy Gdańskiej 27 w Bydgoszczy.

 

Nota prawna

Treść niniejszego ogłoszenia ma charakter wyłącznie informacyjny i nie stanowi oferty handlowej w rozumieniu przepisów Kodeksu Cywilnego.

Lokalizacja nieruchomości

Podobne oferty

Bez prowizji

Mieszkanie na sprzedaż

Bydgoszcz, Bocianowo

2 pokoje 39 m2 10 500,00 zł/m2
Bez prowizji
Bez prowizji

Mieszkanie na sprzedaż

Bydgoszcz, Bocianowo

2 pokoje 37 m2 9 200,00 zł/m2
Bez prowizji
Bez prowizji

Mieszkanie na sprzedaż

Bydgoszcz, Bocianowo

1 pokoj 31 m2 10 900,00 zł/m2
Bez prowizji
Bez prowizji

Mieszkanie na sprzedaż

Bydgoszcz, Bocianowo

2 pokoje 37 m2 9 500,00 zł/m2
Bez prowizji

asystent biurowy / agent nieruchomości

Proszę wprowadzić poprawne imię i nazwisko
Proszę wprowadzić poprawny numer telefonu
Proszę wprowadzić poprawny adres e-mail
Proszę zaznaczyć wymagane zgody
Rozwiąż równanie:
20 1
Niepoprawny wynik